banner_kashiseki

 

貸席とは

流派を超えて茶事、茶会の全てに利用できるよう施設、茶道具類等を完備しております。また、茶の湯の他、和室を使う様々な事(お見合い、結納、小パーティ、接待)にお使いいただけます。

使用場所、使用目的により料金が異なります。詳細は御問合せください。

お問い合わせ

営業時間

  • 茶事や行事の際はお客様のご都合にできるだけ合わせています。
  • 電話での行事申込時間     午前9時30分~午後5時まで(水・日曜日を除く)
  • 電話での事務受付時間     午前9時~午後6時まで(水・日曜日を除く

茶席紹介

施設

 

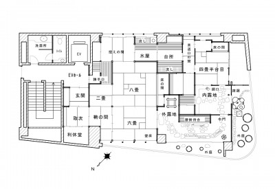
第2タカビル5階 待光庵

図面_待光庵
5階茶室

待光庵
広さ : 4畳半台目

広間
広さ : 6畳・8畳

ガラス窓の内に外露地、腰掛待合、内露地を完備。利休堂、さやの間もございます。

5F待光庵-1
貸席_待光庵_2
貸席_待光庵_3_0325

貸席_待光庵_4
貸席_待光庵_5
貸席_待光庵_5

貸席_待光庵_6
貸席_待光庵_6
貸席_待光庵_7

 

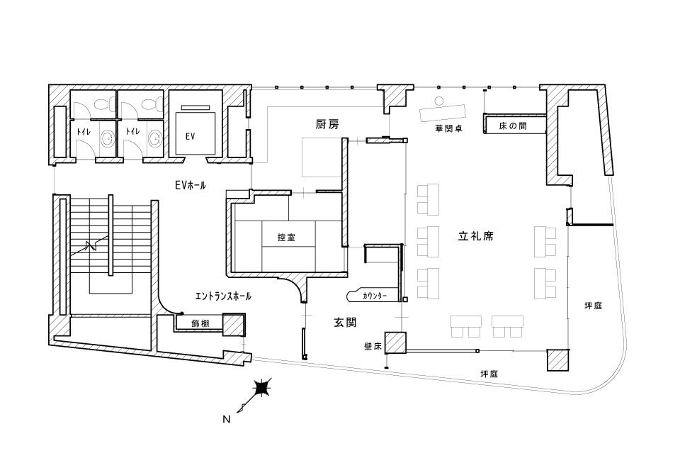
第2タカビル4階 芳月

図面_芳月
4階立礼席

芳月
広さ : 26坪

絨毯じきで椅子をご利用いただける部屋です。壁には、勧進帳の絵があり、和モダンの空気の中で石庭を眺めながらゆったりとおくつろぎいただけます。


(設計:裏千家今日庵営繕部 施工:株式会社ミリエーム)

貸席_芳月_1
貸席_芳月_2
貸席_芳月_3

貸席_芳月_4
芳月1
芳月1

 

第3タカビル7階 直心庵

図面_直心庵
7階 茶室

直心庵
広さ : 8畳

広間
広さ : 8畳

外庭に外露地、腰掛待合、内露地を完備。雨の日には、露地傘を使用したり、季節による庭の移ろいを楽しめます。


(設計:裏千家今日庵営繕部 施工:株式会社ミリエーム)

7F直心庵-1
7F直心庵-2
貸席_直心庵3

7F直心庵-4
直心庵1
直心庵1

 

 

別邸

図面_静幸庵

静幸庵
広さ : 4畳半

待光庵から車で約10分のところにある平屋の茶室です。外には、外露地、腰掛待合、内露地を完備。小さいですが庭の中に山から落ちる滝、流れる川があり、たいこ橋を渡って茶室に導かれます。

広間
広さ : 6畳・8畳

広い廻り縁のある6畳と8畳を、はなれの静幸庵と続きに完備。寄付きや人数の多い時の懐石を頂く場所等にお使いいただいております。


(設計・施工 清水建設株式会社 協力:裏千家今日庵営繕部、株式会社ミリエーム)
※全ての茶室に水屋、厨房道具が完備され茶事がスムーズに行えるようになっております。

静幸庵-1
静幸庵-2
静幸庵7

静幸庵8
静幸庵6
静幸庵4

静幸庵9
貸席_別邸8
貸席_別邸8

アクセス方法

所在地

待光庵・芳月
神奈川県相模原市南区相模大野3-13-13 第2タカビル

直心庵
神奈川県相模原市南区相模大野3-13-15 第3タカビル

静幸庵
神奈川県相模原市南区御園3-16-15

定休日  水曜日

アクセス

お問い合わせ